Септик Ново Эко 3
| Артикул | 002030 |
| Количество человек | до 4 |
| Производительность | 0.6 м3/сутки |
| Пикoвый cбpoc | 210 л |
| Предназначение | для бани, дачи, коттеджа, туалета, загородного дома |
121 900руб.
день
доставка
Септик Ново Эко 3
Станции Novo Eko предназначены для механической и биологической очистки хозяйственно-бытовых и других, близких по составу, сточных вод, поступающих от зданий и сооружений, находящихся на удалении от централизованных канализационных систем.
Система очистки канализационных вод Ново Эко позволяет систематически обслуживать 4 пользователей, имея производительность 600л и залповый сброс 210л.
Принцип работы
Септик Ново Эко 3 работает по принципу аэробного (кислородного) биологического очистного процесса. Он осуществляется в несколько стадий:
1. Процесс осаждения. Сыроотходы из домашней канализации поступают в первый отделительный отсек, где они осаждаются и разделяются на твердые отходы (осадок) и жидкую фракцию.
2. Аэрация. Жидкая фракция проходит в бак с керамическими наполнителями, где происходит процесс аэрации за счет подачи воздуха. В результате образуется активный и очищенный основной сток.
3. Очистка и фильтрация. Очищенный сток проходит через следующие фильтрующие отделения, где происходит фильтрация и биологическая очистка воды. В конечном итоге, вода выходит наружу уже полностью очищенной.
В процессе работы септик Ново Эко 3 является полностью автономным. Его работа контролируется электронной системой управления, которая отслеживает все процессы очистки воды и обеспечивает эффективную и безопасную работу всей системы.
Преимущества
Простой и редкий сервис;
Срок службы не менее 25 лет;
Корпус выполнен из высокопрочного полипропилена;
Низкое электропотребление;
Высокая степень очистки, отсутствие запаха;
Надежная конструкция для сложных грунтовых условий.
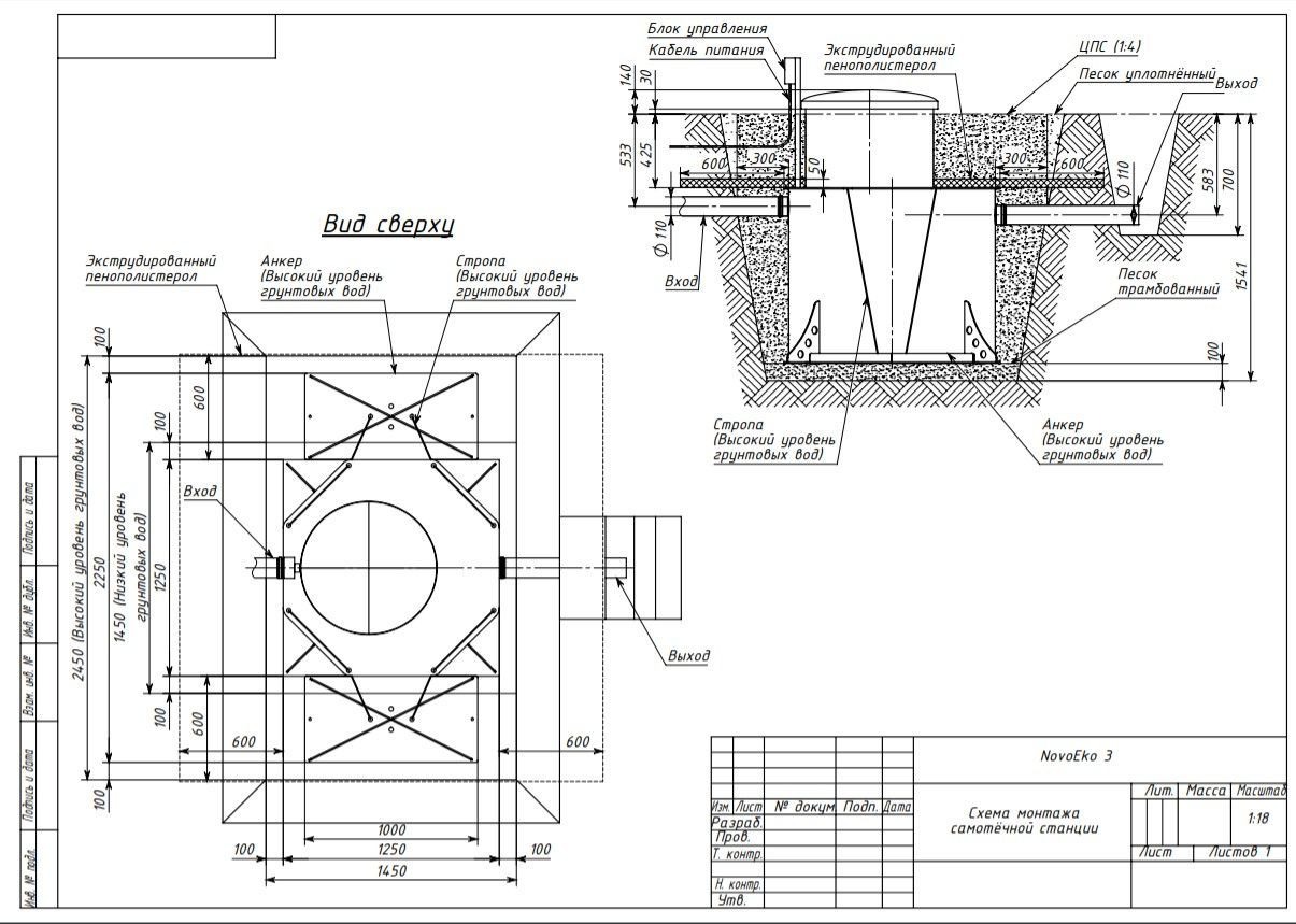
Установка и монтаж
Станция биомеханической очистки сточных вод Novo Eko поставляется в виде готового к монтажу корпуса очистного сооружения и электрооборудования, требующего установки на штатные места.
Монтаж септика Ново Эко 3 включает несколько этапов:
1. Подготовка места для установки септика. Необходимо выбрать подходящее место, приготовить углубление, изучить и учесть возможные ограничения, связанные с глубиной залегания грунтовых вод.
2. Установка. Септик Ново Эко 3 состоит из нескольких модулей: ёмкости для основной очистки, модулей для дополнительной очистки и фильтрация. Модули должны быть установлены в заданном порядке и подключены канализационными трубами.
3. Подключение системы к канализации. Канализационные трубы должны быть подключены к соответствующим входам септика. Для этого необходимо использовать герметичные муфты.
4. Выполнение электромонтажных работ. Для работы септика Ново Эко 3 необходимо выполнить прокладку электрического кабеля и подключить его к сети.
5. Заполнение септика Ново Эко 3 водой и проверка настройки. После установки септика необходимо проверить его работу, а также убедиться, что конструкция надежно герметична.
Обслуживание и консервация
Обслуживание и консервация септика Ново Эко 3 включает в себя следующие действия:
1. Регулярно очищайте фильтры входной камеры. Это необходимо для того, чтобы избежать засорения системы.
2. Проверяйте уровень воды в отстойной камере. Если уровень воды стал слишком высоким, необходимо своевременно произвести откачку.
3. Удаляйте жир и масло, которые могут попадать в систему. Это можно сделать с помощью специальных химических средств или специальных жироуловителей.
4. Регулярно проверяйте состояние крышки септика. Она должна быть надежно закрыта и плотно прилегать к корпусу.
Обеспечивая правильное обслуживание и консервацию, можно эффективно использовать септик Ново Эко 3 в течение многих лет.
| Количество человек | до 4 |
| Производительность | 0.6 м3/сутки |
| Пикoвый cбpoc | 210 л |
| Предназначение | для бани, дачи, коттеджа, туалета, загородного дома |
Похожие товары
Септик Гринлос Аэро Лайт 4 Миди
| Количество человек | до 4 |
| Объем переработки | 0.8 м³/сутки |
| Вариант расположения: | вертикальный |
Вы смотрели
Септик ДЕСЕПТИКОН-6
| Количество человек | до 6 |
| Объем переработки | 1.2 м³/сутки |
| Вариант расположения: | вертикальный |



